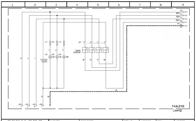
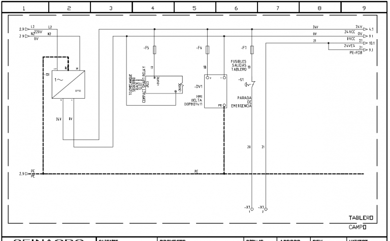
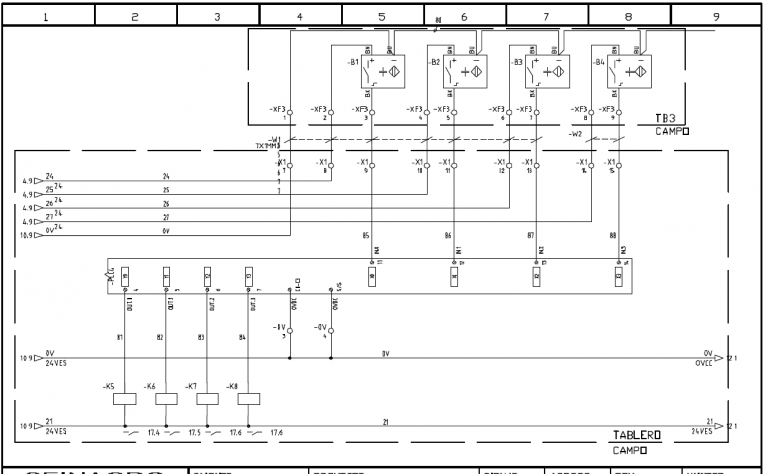
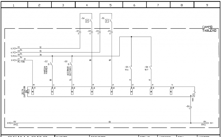
Sistema de Control de Polvo
Cliente
- Cliente: Seinagro S.A.
- Cliente Final: Cargill S.A.
- Sitio: Asunción, Paraguay.
Tecnología
- PLC: Delta DV3
- HMI: Delta
Alcance del Suministro
- Ingeniería del tablero
- Planos eléctricos
- Construcción del tablero
- Programación PLC+HMI
- Asistencia remota durante puesta en marcha









